Planning Committee Approval

    • 31 August 2023

We are delighted to have had a new build house project approved by the South Oxfordshire District Planning Committee.

No objections had been received by any neighbours or nearby properties on this application, and only an objection by the Parish Council resulted in the referral to the Planning Committee.

The Committee unanimously voted to approve the application including comments before the vote that it is ‘a very well thought out, good proposal’ and noting the level of detail included within the application.

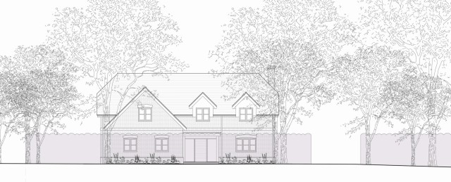
The site of the application is within a small village near Henley-on-Thames. The proposal is for a three bedroom new build house in the front garden of an existing property. An outdoor swimming pool currently occupies the area in question. The design was developed around the trees bordering the boundary to the lane, maintaining the character of the area.

The new property has been designed for the current owner to move into in order to downsize. The new dwelling will be a low energy, sustainable home, with an air source heat pump and solar panels.

Traditional materials have been selected for the new dwelling with red/brown handmade bricks, a blend of handmade clay roof tiles, alongside an oak porch. A continuous horizontal brick banding has been added to provide architectural interest. The proposed dormers are typical of the village style and are also proposed to be clad in the same clay tiles. All the materials selected are in keeping with the Chilterns Area of Outstanding Natural Beauty and local village style.

Fineline+Architects+ +Streetscene
Infill House by Fineline Architects. A street scene drawing was submitted to planning indicating the screening provided by the existing boundary planting.

We are excited to move forwards with this project now that the planning application has been successfully approved.

Get in touch

If you have a project in mind, we would love to hear from you.